Marzysz o tym, by Twoje dzieci miały swój własny, bezpieczny azyl do zabawy w ogrodzie? Samodzielna budowa placu zabaw to fantastyczny projekt, który nie tylko dostarczy mnóstwa radości najmłodszym, ale także pozwoli Ci stworzyć przestrzeń idealnie dopasowaną do ich potrzeb i możliwości. Wiem, że perspektywa budowy od podstaw może wydawać się wyzwaniem, dlatego przygotowałam ten kompleksowy poradnik. Znajdziesz w nim praktyczne instrukcje, wskazówki dotyczące wyboru materiałów oraz kluczowe zasady bezpieczeństwa, które pomogą Ci stworzyć wymarzone miejsce zabaw, w którym Twoje pociechy będą mogły bezpiecznie rozwijać swoją kreatywność i sprawność fizyczną.
Budowa placu zabaw dla dzieci kompleksowy poradnik, jak stworzyć bezpieczną przestrzeń do zabawy.
- Kluczowe są normy bezpieczeństwa, zwłaszcza PN-EN 71-8, dotyczące zabawek i ich wytycznych.
- Wybieraj drewno sosnowe lub świerkowe, strugane, z zaoblonymi krawędziami i impregnowane ciśnieniowo, bezpiecznymi dla dzieci środkami.
- Gotowe elementy, takie jak zjeżdżalnie czy siedziska huśtawek, muszą posiadać atesty zgodności z normą PN-EN 71.
- Niezbędna jest bezpieczna nawierzchnia amortyzująca, np. piasek (min. 30-40 cm), kora lub maty gumowe.
- Formalności prawne na prywatnej posesji są zazwyczaj minimalne, ale zawsze warto sprawdzić w lokalnym urzędzie gminy.

Planowanie placu zabaw: Kluczowe decyzje przed rozpoczęciem budowy
Zanim wbijesz pierwszą łopatę, warto poświęcić czas na dokładne zaplanowanie każdego aspektu placu zabaw. To etap, na którym podejmujesz kluczowe decyzje, które wpłyną na bezpieczeństwo, funkcjonalność i radość z użytkowania przez lata.
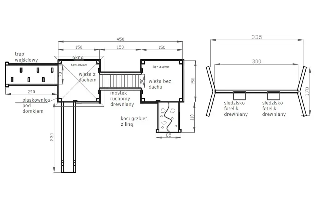
Kto będzie korzystał z placu zabaw? Dopasowanie projektu do wieku i potrzeb dziecka
Projekt placu zabaw powinien być ściśle powiązany z wiekiem i liczbą dzieci, które będą z niego korzystać. Inne potrzeby ma dwulatek, a inne dziesięciolatek. Dla maluchów kluczowe są niskie, łatwo dostępne elementy, takie jak piaskownica, niska zjeżdżalnia czy huśtawka z oparciem. Starsze dzieci docenią wyższe konstrukcje, ścianki wspinaczkowe, liny czy bardziej skomplikowane wieże. Pamiętaj, aby elementy były dostosowane do możliwości rozwojowych, co zapewni nie tylko bezpieczeństwo, ale i atrakcyjność zabawy. Jeśli masz dzieci w różnym wieku, rozważ modułową konstrukcję, którą można rozbudowywać lub modyfikować w miarę ich dorastania.
Gdzie umieścić plac zabaw? Analiza nasłonecznienia, widoczności i podłoża w ogrodzie
Wybór odpowiedniej lokalizacji to podstawa. Z mojego doświadczenia wynika, że należy wziąć pod uwagę kilka kluczowych czynników:
- Nasłonecznienie: Unikaj pełnego słońca w najgorętszych godzinach dnia. Idealne jest miejsce częściowo zacienione, np. przez drzewa lub budynek, które zapewni cień w upalne popołudnia. Zbyt intensywne słońce może prowadzić do przegrzania dzieci i nagrzewania się elementów placu zabaw, np. zjeżdżalni.
- Widoczność z domu: Upewnij się, że plac zabaw będzie dobrze widoczny z kuchni, salonu czy tarasu. Stała kontrola nad bawiącymi się dziećmi to podstawa ich bezpieczeństwa.
- Płaskie i stabilne podłoże: Wybierz możliwie płaski teren, co ułatwi montaż i zapewni stabilność konstrukcji. Unikaj miejsc o dużym nachyleniu, które mogłyby utrudniać bezpieczną zabawę i wymagałyby skomplikowanych prac ziemnych.
Projekt marzeń a realny budżet: Jak oszacować koszty i czego nie można pominąć?
Oszacowanie budżetu to jeden z pierwszych i najważniejszych kroków. Koszt budowy placu zabaw może się znacznie różnić w zależności od wielkości, złożoności projektu i wybranych materiałów. Zawsze radzę, aby nie oszczędzać na jakości, ponieważ to inwestycja w bezpieczeństwo Twoich dzieci. Główne kategorie kosztów, które musisz wziąć pod uwagę, to:
- Drewno: To zazwyczaj największy wydatek. Cena zależy od gatunku, klasy i stopnia obróbki (strugane, impregnowane).
- Gotowe elementy: Ślizgi, siedziska huśtawek, uchwyty, ścianki wspinaczkowe ich ceny mogą być znaczące, ale pamiętaj, że muszą posiadać atesty.
- Impregnaty i farby: Niezbędne do zabezpieczenia drewna i nadania estetycznego wyglądu. Wybieraj te z atestami bezpieczeństwa dla dzieci.
- Okucia i elementy złączne: Śruby, wkręty, kotwy, zawiesia do huśtawek ich jakość jest kluczowa dla stabilności.
- Narzędzia: Jeśli nie masz podstawowego zestawu, musisz uwzględnić ich zakup lub wypożyczenie.
- Nawierzchnia amortyzująca: Piasek, kora, maty gumowe to często niedoceniany, ale absolutnie niezbędny element budżetu.
Moim zdaniem, warto przeznaczyć nieco więcej środków na wysokiej jakości materiały i certyfikowane elementy, by mieć pewność, że plac zabaw będzie służył bezpiecznie przez wiele lat.
Zgłoszenie czy pozwolenie? Sprawdzamy formalności prawne dla przydomowej konstrukcji
Wielu rodziców zastanawia się, czy budowa placu zabaw w ogrodzie wymaga zgłoszenia lub pozwolenia. Zgodnie z polskim prawem budowlanym, w przypadku budowy na prywatnej posesji na własne potrzeby, zazwyczaj nie są wymagane żadne formalności. Dotyczy to konstrukcji, które nie są trwale związane z gruntem (np. nie są zabetonowane na stałe w fundamentach) i nie przekraczają określonych wymiarów, kwalifikując się jako obiekty małej architektury. Jednakże, zawsze i bezwzględnie zalecam weryfikację tych informacji w lokalnym urzędzie gminy lub starostwie powiatowym. Przepisy lokalne mogą się różnić, a krótka wizyta w urzędzie pozwoli uniknąć ewentualnych nieporozumień w przyszłości.
Bezpieczne materiały: Wybór trwałych komponentów z atestem
Wybór odpowiednich materiałów to fundament bezpiecznego i trwałego placu zabaw. Nie ma tu miejsca na kompromisy jakość i certyfikaty są absolutnym priorytetem.
Jakie drewno wybrać, by konstrukcja służyła latami? Przegląd gatunków i klas
Najpopularniejszym i moim zdaniem najlepszym materiałem do budowy placu zabaw jest drewno sosnowe lub świerkowe. Jest stosunkowo łatwo dostępne, a po odpowiedniej obróbce i impregnacji staje się bardzo trwałe. Kluczowe jest, aby drewno było strugane czterostronnie, co zapewnia gładką powierzchnię i minimalizuje ryzyko drzazg. Niezwykle ważne jest również, aby krawędzie (kanty) były zaoblone to znacząco zwiększa bezpieczeństwo, eliminując ostre rogi, o które dziecko mogłoby się uderzyć. Wybierając drewno, zwróć uwagę na jego klasę im wyższa, tym mniej sęków i pęknięć, co przekłada się na większą wytrzymałość i estetykę.
Impregnacja krok po kroku: Czym i jak zabezpieczyć drewno, by było bezpieczne dla dzieci?
Impregnacja drewna to absolutna konieczność, jeśli chcesz, aby plac zabaw przetrwał lata w dobrym stanie, odporny na wilgoć, grzyby i szkodniki. Oto jak to zrobić:
- Wybór impregnatu: Postaw na impregnaty ciśnieniowe na bazie wody, które są certyfikowane jako bezpieczne dla dzieci (np. posiadające atest PN-EN 71-3). Unikaj środków zawierających toksyczne substancje.
- Przygotowanie drewna: Upewnij się, że drewno jest czyste, suche i wolne od kurzu. Jeśli jest to surowe drewno, możesz je lekko przeszlifować.
- Aplikacja impregnatu: Impregnat można nanosić pędzlem, wałkiem lub metodą natryskową. Najlepsze efekty daje impregnacja ciśnieniowa, ale w warunkach domowych wystarczy dokładne pokrycie każdej powierzchni.
- Wielokrotne warstwy: Zazwyczaj zaleca się nałożenie 2-3 warstw impregnatu, z zachowaniem przerw na wyschnięcie między nimi, zgodnie z instrukcją producenta.
- Dodatkowe zabezpieczenie: Po impregnacji, dla dodatkowej ochrony i estetyki, możesz pomalować drewno farbą lub lakierem również przeznaczonym do zabawek dziecięcych.
Pamiętaj, że odpowiednia impregnacja to klucz do długowieczności i bezpieczeństwa konstrukcji.
Ślizgi, huśtawki, uchwyty: Dlaczego warto inwestować w gotowe elementy z atestem PN-EN 71?
W przypadku gotowych elementów, takich jak ślizgi (zjeżdżalnie), siedziska huśtawek, uchwyty czy chwyty do ścianek wspinaczkowych, absolutnie kluczowe jest, aby posiadały one atesty zgodności z normą PN-EN 71. Ta norma reguluje bezpieczeństwo zabawek i jej wytyczne są fundamentalne dla przydomowych placów zabaw. Dlaczego to takie ważne?
Elementy z atestem gwarantują, że zostały zaprojektowane i wykonane z myślą o bezpieczeństwie dzieci. Oznacza to brak ostrych krawędzi, odpowiednie wymiary zapobiegające zakleszczeniu, wytrzymałość materiałów na obciążenia oraz odporność na warunki atmosferyczne. Kupując atestowane produkty, masz pewność, że spełniają one rygorystyczne normy i minimalizują ryzyko wypadków. Moim zdaniem, to jeden z tych obszarów, gdzie nie wolno szukać oszczędności kosztem bezpieczeństwa.
Śruby, wkręty i kotwy: Małe detale, które decydują o stabilności całej konstrukcji
Choć często niedoceniane, odpowiednie elementy złączne są kręgosłupem każdej stabilnej konstrukcji. Do łączenia drewnianych elementów placu zabaw najlepiej używać wkrętów ciesielskich oraz śrub zamkowych. Powinny być wykonane ze stali nierdzewnej lub ocynkowanej, co zapewni im odporność na korozję i długowieczność w warunkach zewnętrznych. Pamiętaj, aby wszystkie wystające elementy śrub i nakrętek były zabezpieczone zaślepkami lub znajdowały się w miejscach niedostępnych dla dzieci. To właśnie te "małe detale" decydują o tym, czy cała konstrukcja będzie bezpieczna i stabilna przez lata.

Budowa placu zabaw krok po kroku: Od fundamentów po montaż urządzeń
Gdy już masz plan i wszystkie materiały, czas przejść do działania! Pamiętaj o precyzji i cierpliwości każdy etap ma znaczenie dla końcowego efektu.
Niezbędnik majsterkowicza: Jakie narzędzia przygotować przed rozpoczęciem pracy?
Przed rozpoczęciem prac upewnij się, że masz pod ręką podstawowe narzędzia:
- Piła (ręczna lub elektryczna, np. ukośnica)
- Wiertarka (z wiertłami do drewna o różnych średnicach)
- Poziomica (długa i krótka)
- Miarka zwijana
- Młotek
- Klucze (płaskie lub nasadowe do śrub)
- Ściski stolarskie (przydatne do tymczasowego mocowania elementów)
- Wkrętarka
- Szpadel lub łopata
- Betoniarka (jeśli planujesz betonowanie słupów)
- Rękawice robocze i okulary ochronne
Stabilność to podstawa: Jak prawidłowo kotwiczyć słupy nośne w ziemi?
Stabilność konstrukcji to absolutny priorytet. Słupy nośne muszą być solidnie zakotwiczone w ziemi. Moim zdaniem, są dwie główne, skuteczne metody:
- Betonowanie słupów: Wykop otwory o głębokości co najmniej 60-80 cm (im wyższa konstrukcja, tym głębiej) i średnicy ok. 30-40 cm. Na dnie otworu możesz usypać warstwę żwiru dla drenażu. Umieść słup w otworze, wypoziomuj go idealnie w pionie (za pomocą poziomicy) i zalej betonem. Pamiętaj, aby beton wystawał nieco ponad poziom gruntu, tworząc "stopę", która ochroni drewno przed bezpośrednim kontaktem z wilgocią z ziemi. Ważne jest, aby beton dobrze związał, zanim obciążysz konstrukcją.
- Użycie specjalnych kotew gruntowych: Możesz zastosować stalowe kotwy wbijane lub wkręcane w ziemię, do których następnie mocujesz słupy. Ta metoda jest szybsza i pozwala na łatwiejsze demontowanie placu zabaw w przyszłości, ale wymaga precyzyjnego montażu kotew i zazwyczaj jest droższa.
Niezależnie od wybranej metody, upewnij się, że wszystkie słupy są idealnie wypoziomowane i stabilnie osadzone. To klucz do bezpieczeństwa!
Konstrukcja wieży lub domku: Instrukcja montażu szkieletu, podestu i dachu
Budowa wieży czy domku to serce placu zabaw. Oto kluczowe etapy montażu:
- Montaż szkieletu: Po zakotwiczeniu słupów nośnych, połącz je poziomymi belkami, tworząc solidny szkielet. Używaj śrub zamkowych i wkrętów ciesielskich. Regularnie sprawdzaj kąty i poziomy za pomocą poziomicy, aby konstrukcja była prosta i stabilna.
- Budowa podestu: Na odpowiedniej wysokości zamontuj belki nośne podestu, a następnie przykręć do nich deski podłogowe. Pamiętaj o zachowaniu niewielkich odstępów między deskami, co umożliwi odpływ wody. Krawędzie podestu powinny być zaokrąglone.
- Konstrukcja dachu: Dach ochroni dzieci przed słońcem i deszczem. Możesz zbudować prosty dwuspadowy lub jednospadowy dach z drewna, pokrywając go gontem bitumicznym lub innym lekkim materiałem. Upewnij się, że konstrukcja dachu jest stabilna i nie ma ostrych elementów.
Precyzja na tym etapie jest niezwykle ważna, ponieważ wpływa na stabilność i bezpieczeństwo całej konstrukcji.
Montaż zjeżdżalni i ścianki wspinaczkowej: Jak zachować prawidłowe kąty i odstępy?
Montując zjeżdżalnię, upewnij się, że jest ona stabilnie przymocowana do podestu i ma bezpieczny kąt nachylenia zbyt stroma zjeżdżalnia może być niebezpieczna, a zbyt płaska nudna. Koniec zjeżdżalni powinien znajdować się na odpowiedniej wysokości nad nawierzchnią amortyzującą, aby dziecko mogło bezpiecznie z niej zejść. W przypadku ścianki wspinaczkowej, kluczowe jest zachowanie odpowiednich odstępów między chwytami, dostosowanych do wieku dzieci. Chwyty powinny być solidnie przymocowane i nie obracać się. Pamiętaj o normach PN-EN 71-8, które określają bezpieczne odstępy i minimalizują ryzyko zakleszczenia głowy czy kończyn w szczelinach konstrukcji. Zawsze sprawdzaj, czy nie ma ostrych krawędzi czy wystających elementów, które mogłyby zaczepić ubranie dziecka.
Belka na huśtawki: Obliczanie wytrzymałości i bezpieczny montaż zawiesi
Belka na huśtawki musi być niezwykle wytrzymała, ponieważ będzie poddawana dynamicznym obciążeniom. Wybierz solidną, grubą belkę o odpowiednim przekroju (np. 9x9 cm lub większą), najlepiej z drewna klejonego, które jest bardziej odporne na odkształcenia. Belka powinna być stabilnie zamocowana do słupów nośnych za pomocą długich śrub zamkowych lub specjalnych okuć. Zawiesia huśtawek (haki) muszą być przeznaczone do tego celu, wykonane z wytrzymałej stali i solidnie wkręcone w belkę, najlepiej z użyciem przelotowych śrub z nakrętkami kontrującymi. Zwróć uwagę na to, aby haki były odpowiednio rozstawione, zapewniając wystarczającą przestrzeń między huśtawkami oraz między huśtawką a konstrukcją, aby uniknąć kolizji.
Bezpieczna nawierzchnia: Jak chronić dzieci przed upadkami?
Nawierzchnia amortyzująca to jeden z najważniejszych, a jednocześnie najczęściej niedocenianych elementów placu zabaw. To ona chroni dzieci przed poważnymi urazami podczas upadków. Nie ma tu miejsca na oszczędności!
Trawa, piasek, a może mata gumowa? Porównanie popularnych rozwiązań
Wybór nawierzchni zależy od wysokości konstrukcji i budżetu. Oto porównanie popularnych rozwiązań:
| Typ nawierzchni | Zalety i wady / Wymagania |
|---|---|
| Trawa / Darń | Wady: Słaba amortyzacja, szczególnie pod wyższymi konstrukcjami. Szybko się wyciera w miejscach intensywnego użytkowania. Zalety: Najtańsza, naturalna. |
| Piasek | Zalety: Dobra amortyzacja, naturalny, stosunkowo niedrogi. Wady: Wymaga regularnego grabienia i uzupełniania, może być roznoszony. Wymagania: Warstwa o grubości min. 30-40 cm, drobny, czysty piasek. |
| Drobny żwir | Zalety: Dobra amortyzacja, estetyczny. Wady: Może być twardy dla małych dzieci, wymaga obrzeży, może być roznoszony. Wymagania: Warstwa min. 30-40 cm, zaokrąglone ziarna. |
| Kora (rozdrabniana) | Zalety: Naturalna, estetyczna, dobra amortyzacja. Wady: Wymaga regularnego uzupełniania, może gnić, przyciąga owady. Wymagania: Warstwa min. 30-40 cm, bez ostrych kawałków. |
| Maty gumowe | Zalety: Najlepsza amortyzacja, bardzo trwałe, łatwe w utrzymaniu, estetyczne. Wady: Najdroższe rozwiązanie. Wymagania: Dostępne w różnych grubościach, dostosowanych do wysokości upadku. |
Moim zdaniem, pod wyższymi konstrukcjami i na końcu zjeżdżalni, maty gumowe lub gruba warstwa piasku/kory to absolutna podstawa.
Jak przygotować podłoże pod bezpieczną nawierzchnię amortyzującą?
Niezależnie od wybranej nawierzchni, odpowiednie przygotowanie podłoża jest kluczowe:
- Usunięcie darni: W miejscu planowanej nawierzchni usuń trawę i wierzchnią warstwę ziemi.
- Wyrównanie terenu: Podłoże powinno być płaskie i stabilne.
- Wykonanie drenażu: W przypadku piasku, żwiru czy kory, warto wykonać warstwę drenażową (np. z geowłókniny i grubszego żwiru), aby woda nie zalegała i nawierzchnia szybko wysychała.
- Montaż obrzeży: Aby materiał sypki (piasek, kora, żwir) nie roznosił się po ogrodzie, konieczne jest wykonanie solidnych obrzeży (drewnianych, betonowych lub z kostki).
- Wysypanie i wyrównanie: Na przygotowane podłoże wysyp wybraną nawierzchnię i dokładnie ją wyrównaj, dbając o odpowiednią grubość warstwy.
Obliczanie strefy bezpieczeństwa: Ile wolnego miejsca zostawić wokół każdego urządzenia?
Strefa bezpieczeństwa to obszar wokół każdego urządzenia, w którym dziecko może bezpiecznie upaść lub wyskoczyć, nie narażając się na uderzenie o inną konstrukcję czy przeszkodę. Jest to niezwykle ważny aspekt, często pomijany przy samodzielnej budowie. Ogólne zasady, bazujące na normach dla placów zabaw (np. PN-EN 1176), mówią o konieczności zachowania minimum 1,5 do 2 metrów wolnej przestrzeni wokół każdego urządzenia. W przypadku huśtawek strefa ta jest jeszcze większa powinna rozciągać się na odległość równą dwukrotnej długości zawieszenia huśtawki, zarówno z przodu, jak i z tyłu. Zawsze upewnij się, że w strefie bezpieczeństwa nie ma żadnych twardych elementów, kamieni, wystających korzeni czy innych przeszkód. To gwarancja, że nawet w razie upadku, dziecko będzie bezpieczne.

Konserwacja i pielęgnacja: Długowieczność i bezpieczeństwo placu zabaw
Zbudowanie placu zabaw to dopiero początek. Regularna konserwacja i pielęgnacja są kluczowe, by konstrukcja służyła bezpiecznie przez wiele lat i zachowała swój estetyczny wygląd.
Szlifowanie i malowanie: Jakie farby są bezpieczne i kiedy ich używać?
Drewno pod wpływem warunków atmosferycznych może pękać i tworzyć drzazgi. Dlatego regularne szlifowanie (np. raz w roku lub w razie potrzeby) jest niezbędne, aby powierzchnia była gładka i bezpieczna dla dzieci. Po szlifowaniu warto odświeżyć warstwę ochronną. Do malowania i lakierowania używaj wyłącznie farb i lakierów przeznaczonych do zabawek dziecięcych, posiadających odpowiednie atesty bezpieczeństwa (np. PN-EN 71-3). Gwarantuje to, że produkty są nietoksyczne i bezpieczne w kontakcie z dziećmi. Malowanie nie tylko poprawia estetykę, ale także tworzy dodatkową warstwę ochronną dla drewna.
Pierwszy przegląd techniczny po montażu: Co musisz sprawdzić?
Po zakończeniu montażu, zanim dzieci po raz pierwszy wejdą na plac zabaw, przeprowadź bardzo dokładny przegląd techniczny. To Twój moment na ostateczne upewnienie się, że wszystko jest w porządku:
- Stabilność wszystkich połączeń: Sprawdź, czy wszystkie śruby i wkręty są mocno dokręcone.
- Brak ostrych krawędzi i drzazg: Dokładnie przeszlifuj wszelkie nierówności.
- Prawidłowe działanie ruchomych elementów: Upewnij się, że huśtawki swobodnie się bujają, a zjeżdżalnia jest gładka.
- Zgodność z planem i normami bezpieczeństwa: Zweryfikuj, czy wszystkie elementy są zamontowane zgodnie z projektem i spełniają podstawowe zasady bezpieczeństwa (np. odstępy, strefy bezpieczeństwa).
- Zabezpieczenie wystających elementów: Wszystkie wystające śruby powinny być zabezpieczone zaślepkami.
Roczny plan konserwacji: Jakie elementy regularnie kontrolować i serwisować?
Aby plac zabaw służył długo i bezpiecznie, konieczny jest regularny plan konserwacji, najlepiej przeprowadzany raz w roku, np. wiosną:
- Sprawdzenie śrub i wkrętów: Dokręć wszystkie luźne połączenia.
- Stan drewna: Obejrzyj drewno pod kątem pęknięć, oznak gnicia, pleśni czy ataku szkodników. Uszkodzone elementy należy naprawić lub wymienić.
- Zawiesia huśtawek: Sprawdź stan haków, łańcuchów/lin i siedzisk. Wymień zużyte lub uszkodzone elementy.
- Stan nawierzchni amortyzującej: Uzupełnij piasek, korę lub żwir do odpowiedniej grubości. Sprawdź, czy maty gumowe nie są uszkodzone.
- Czyszczenie: Regularnie czyść plac zabaw z brudu, liści i innych zanieczyszczeń.
- Elementy ruchome: Sprawdź, czy wszystkie ruchome części (np. zjeżdżalnia, drabinki) są stabilne i nie mają luzów.
Przeczytaj również: Czym zabezpieczyć drewniany plac zabaw? Przewodnik (PN-EN 71-3)
Najczęstsze błędy przy samodzielnej budowie i jak ich uniknąć?
Z mojego doświadczenia wiem, że nawet z najlepszymi chęciami można popełnić błędy. Oto najczęstsze z nich i wskazówki, jak ich uniknąć:
- Ignorowanie norm bezpieczeństwa: Wielu rodziców nie zdaje sobie sprawy z istnienia norm PN-EN 71-8 czy PN-EN 1176. Jak uniknąć: Zawsze zapoznaj się z podstawowymi wytycznymi dotyczącymi bezpiecznych odległości, wysokości i ryzyka zakleszczenia.
- Brak atestów na gotowe elementy: Kupowanie tanich ślizgów czy huśtawek bez certyfikatów. Jak uniknąć: Zawsze inwestuj w gotowe elementy z atestem PN-EN 71, który gwarantuje ich bezpieczeństwo.
- Niedostateczne kotwienie konstrukcji: Słupy są za płytko osadzone lub słabo zabetonowane. Jak uniknąć: Kotwienie słupów na głębokość min. 60-80 cm, z użyciem betonu lub solidnych kotew gruntowych, to podstawa stabilności.
- Brak odpowiedniej nawierzchni amortyzującej: Pozostawienie samej trawy pod wysokimi konstrukcjami. Jak uniknąć: Zawsze stosuj nawierzchnię amortyzującą (piasek, kora, maty gumowe) o odpowiedniej grubości, dostosowanej do wysokości upadku.
- Użycie niebezpiecznych impregnatów lub farb: Stosowanie środków chemicznych, które mogą być toksyczne dla dzieci. Jak uniknąć: Wybieraj wyłącznie impregnaty i farby z atestami bezpieczeństwa dla dzieci (np. PN-EN 71-3).
- Ostre krawędzie i drzazgi: Niedokładne szlifowanie drewna. Jak uniknąć: Dokładnie szlifuj wszystkie elementy, zwłaszcza krawędzie, i regularnie kontroluj ich stan.
